Однокомнатная квартира 43 кв.м: Как создать комфорт для двух работающих супругов и двух приезжающих к ним на каникулы внуков

Задача проекта

К нам обратились супруги в возрасте 50+ с просьбой предложить им варианты перепланировки и дизайна однокомнатной квартиры.

Она - преподаватель, он – юрист. Графики работы разные. Часто принимают в гостях двух внуков 10 и 5 лет. Мальчики активные и подвижные, приезжают на целые каникулы.

Нам предстояло на 43 кв.метрах предусмотреть: зону сна и отдыха заказчиков, зону кухни-столовой с раскладным столом, зону для работы с хорошим освещением, спальные места для внуков, а также влажную зону с прачечным блоком. И много-много разных мест хранения, в том числе для хозяйственного оборудования, для спортинвентаря мальчиков, для семейного фарфора и коллекции алкоголя. А еще - мини-огород на подоконниках.

Мы с удовольствием взялись за этот проект, поскольку требовалось создать новое уютное пространство в «сдержанной, спокойной, нейтральной» цветовой гамме (палитру выбирала заказчица) для семьи с добрыми многолетними традициями.

Реализация проекта

Перепланировка заключалась в объединении кухни и гостиной, расширении санузла и оборудовании кладовки за счет присоединения коридора.

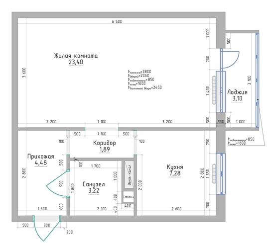
Исходная планировка квартиры:

Помимо кладовки хранение вещей и порядок обеспечиваются большим встроенным шкафом от пола до потолка с антресолями в прихожей, а также платяными шкафами в спальне и гостиной.

Светодиодный точечный светильник с датчиком движения встроен в стену с фреской напротив входной двери. Декор на стенах - семейные фото и современное искусство. В оформлении квартиры использована авторская графика художника Марины Садомской.

В просторной кухне-гостиной в витринах с подсветкой выставлена коллекция фарфора, а над телевизором разместились модели автомобилей, которые когда-то своими руками собирал заказчик, а теперь в них играют его внуки.

Спальные места для внуков – это кресла-кровати, составленные вместе и образующие небольшой уютный диванчик в гостиной. В конечном итоге остановились на этом варианте, хотя рассматривалась еще двухъярусная кровать-трансформер. Но в этом случае пришлось бы пожертвовать несколькими шкафами и гармонией интерьера в целом.

Спальня заказчиков отделена от гостиной угловой стеклянной перегородкой с римскими шторами в пол.

На балконе оборудовано рабочее место с несколькими сценариями освещения. Там же установлена витрина с коллекцией алкоголя.

Прачечный блок был размещен в санузле. За счет использования присоединенной площади коридора появилось место для просторной душевой кабины. Кроме того, во все ниши встроены дополнительные шкафы под хозяйственные нужды.

Таким образом, были учтены и выполнены абсолютно все пожелания заказчиков, как по планировочному решению, так и по цветовой гамме и подбору материалов.