Важно! В отличие от многих студий дизайна мы работаем со СВОЕЙ РЕМОНТНОЙ БРИГАДОЙ – слаженной командой профессионалов всех необходимых специальностей. Таким образом, на этапе передачи дизайн-проекта строителям не происходит так часто встречающейся «передачи ответственности»: «Арт-Акант» ведет Ваш проект от обмерного плана до развески штор и светильников. На рынке с 2001 года!
Этапы работы:
1. Всё начинается с Вашего звонка или письма нам. Во время первой беседы по телефону мы выясняем следующие детали:
- Что собой представляет помещение, его назначение, местоположение, метраж и другие детали. При наличии любого плана, хотя бы плана БТИ, просим прислать его.
- Для кого предназначено помещение. То есть если это квартира в жилом доме, то состав семьи, возраст, род занятий, особенности, привычки, увлечения: спортинвентарь, коллекцию, библиотеку или музыкальные инструменты тоже нужно красиво или наоборот скрыто разместить.
- Домашние животные. Кто, сколько? И шутка про рыбок тут как раз и не шутка вовсе: вписать аквариум в интерьер – это отдельное искусство.
- Кто принимает решения. Понятно, что мы обязаны учесть все мнения и пожелания, однако, в спорных ситуациях нам необходимо понимать, кто скажет последнее слово.
- Предполагаемые сроки завершения работ.
- Предполагаемый бюджет.
По итогам беседы мы отправляем Вам по электронной почте файл с ТЗ (техническим заданием) и проект договора. И договариваемся о встрече на объекте. Полезность первого очного знакомства кратно возрастет, если Вы уже успеете заполнить ТЗ и согласовать договор для подписания.



2. Встреча на объекте. Приоритетная важность этой встречи заключается в подробнейшем обмере помещения нашим специалистом. По итогам встречи подписывается договор и в течение 3-4 дней Вам предоставляется детальный обмерный план и 3D визуализация объекта в его изначальном состоянии.

Важно! Мы также работаем дистанционно, с заказчиками из других городов или даже стран. В этом случае заказчик берет на себя подготовку подробного обмерного плана. Для этого лучше пользоваться услугами профессионального замерщика.
3. Разработка концепции. Концепция ремонта и дизайна – это первые наброски согласно пожеланиям заказчика, в рамках заполненного ТЗ: что нужно снести, что возвести, какую технику и мебель обязательно учесть и предварительно разместить на плане, какие цвета и материалы в отделке и мебели предпочтительны. После визирования концепции дальнейшие переделки планировочного решения с отступлением от концепции – за дополнительную плату!

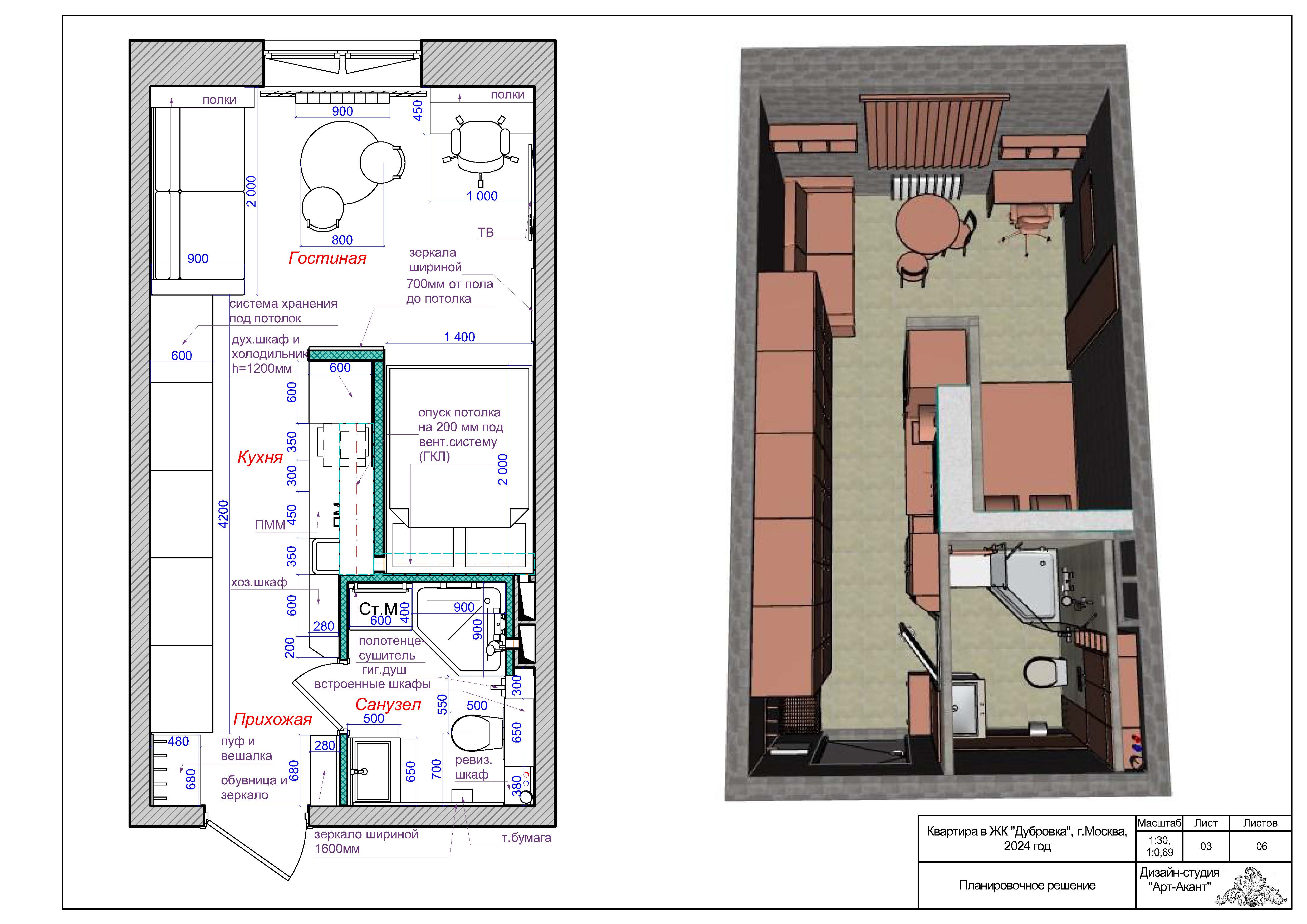
4. Разработка планировочного решения. Планировочное решение отличается от концепции тем, что в его вариациях уже не меняется положение стен, дверей, окон, лестниц, радиаторов и других стационарных элементов и конструкций помещения. На планировочном решении максимально точно проставляются все размеры и расстояния с учетом требований эргономики. Максимально подробно прописываются условные обозначения и пояснения. Заказчик утверждает одно из трех предлагаемых планировочных решений. И оно становится окончательным планом для строителей.
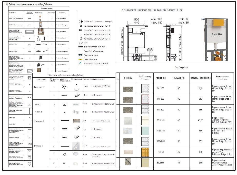
5. Подготовка рабочей документации для ремонтной бригады в соответствии с утвержденным планировочным решением - альбом в формате pdf: планы демонтажа, монтажа, окончательного вида стен, перегородок и других изменений, мебель, сантехника, бытовая техника, розетки и выключатели, светильники, плинтуса и карнизы, потолки, балки, колонны и другие подробности будущего интерьера с экспликациями и развертками.
6. Выбор цветовой гаммы и материалов. На этом этапе дизайнер окончательно «сверяет часы» с заказчиком в смысле достижения максимального взаимопонимания по оформлению интерьера. Заказчику предлагаются на выбор различные палитры и коллажи в контексте обсужденных с ним и внесенных в ТЗ стилей и цветовых решений.

8. Подготовка таблиц комплектации (спецификации) и общей сметы проекта: материалы финишной отделки, мебель, сантехника, техника, освещение, электрика, текстиль и т.д. В таблицах мы указываем ссылки на сайты производителей и поставщиков. Материалы для черновой отделки не входят в комплектацию и предварительно оцениваются по площади помещения.
ЭТОТ ЭТАП НЕ ВХОДИТ В ДОГОВОР ДИЗАЙН-ПРОЕКТА. ОН ВОЗМОЖЕН ТОЛЬКО ПРИ ИЗНАЧАЛЬНОМ УТВЕРЖДЕНИИ ОБЩЕГО БЮДЖЕТА ПРОЕКТА И НУЖЕН ИМЕННО ДЛЯ ТОГО, ЧТОБЫ НЕ ПРЕВЫСИТЬ ЗАПЛАНИРОВАННУЮ СУММУ В ХОДЕ РЕМОНТА.